HCII Küçük Bant Konveyor
Cat:Dönüş Bant Konveyör
Kılavuz tekerleği ve kılavuz rayı arasındaki işbirliği sayesinde kemer çekilebilir ve çalıştırıla...
Gelişmiş yapı, yüksek kaliteli performans, kullanımı kolay, yüksek güvenilirlik ve dayanıklılık.
Dönüş kemeri çevirme makinesi, esas olarak malzemeleri bir kayış konveyör hattından başka bir 90 derece veya 180 derece tersine çeviren bant konveyörüne aktarmak için kullanılan yaygın bir taşıma ekipmanıdır. Kemerler, çerçeveler, tahrik silindirleri, ters silindirler, yük taşıyan paletler, dönüş silindirleri ve germe cihazları gibi bileşenlerden oluşur. Kemer Dönüş Makinesi'nin konveyör bandının malzemesi PVC, PU, PVK, vb. Gibi çeşitli malzemeler içerir. Sıradan malzemeleri aktarmak için kullanılmanın yanı sıra, yağ direnci, asit ve alkali korozyon direnci gibi özel gereksinimlere sahip malzemelerin taşınmasını da karşılayabilir.

Kılavuz tekerleği ve kılavuz rayı arasındaki işbirliği sayesinde kemer çekilebilir ve çalıştırıla...
Kılavuz tekerleği ve kılavuz rayı arasındaki işbirliği sayesinde kemer çekilebilir ve çalıştırılabilir.
Özellikler: Düşük maliyet, hafif yük ve düşük hız.
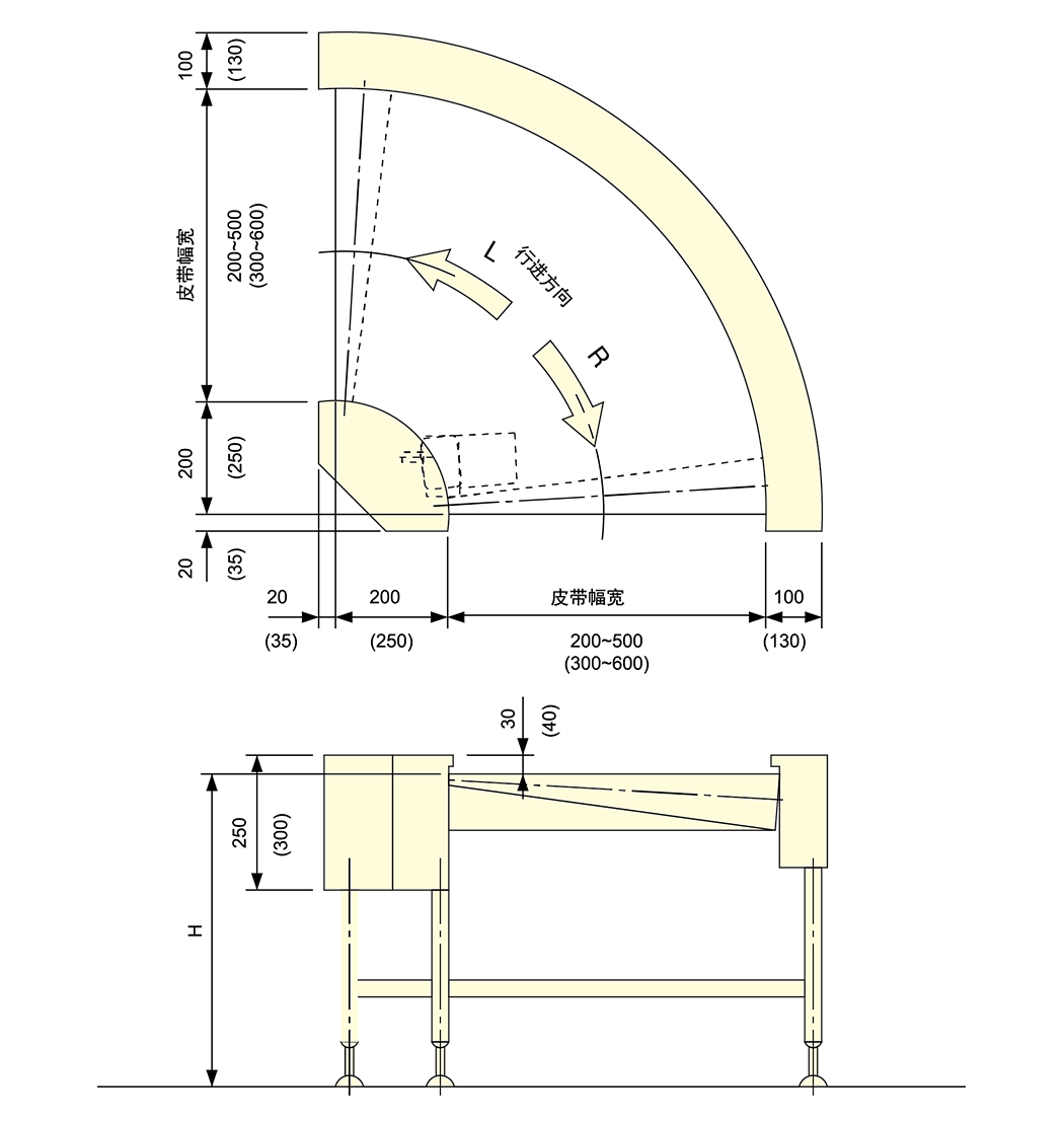
Standart boyut
HCII-S
| Kayış genişliği | 200 | 300 | 400 | 500 |
| Konveyör genişliği | 520 | 620 | 720 | 820 |
| Açılış | 90 | Motor gücü | 90W 、 120W 、 200W |
| Yükseklik | 270 ila 1100 feet yüksekliğinde | Güç | AC100V (tek fazlı) · AC200V (tek fazlı) · AC200V (üç faz) |
| Hız | Sabit/Değişken Hız | Kemer | Poliüretan kemeri |
| Kabiliyet | 10kg/set (yatay olarak dağılmış yük olduğunda) |
Torba şekillerini şekillendirirken, lütfen aboving kabiliyeti verilerinin% 40'ına ulaşın.
HCII-M
| Kayış genişliği | 300 | 400 | 500 | 600 |
| Konveyör genişliği | 680 | 780 | 880 | 980 |
| Açılış | 90 | Motor gücü | 200W 、 400W |
| Yükseklik | Lütfen belirtin, bacaklar isteğe bağlıdır | Güç | AC200V (üç fazlı) |
| Hız | Sabit hız | Kemer | Poliüretan kemeri |
| Kabiliyet | 40kg/set (yatay olarak dağılmış yük olduğunda) |
Torba şekillerini şekillendirirken, lütfen aboving kabiliyeti verilerinin% 40'ına ulaşın.
HCII-S Kemer Hızı
| Oran | Hız No. | Sabit hız 50/60 (Hz) (m/dk) | Hız Hayır | Değişken Hız 50/60 (Hzx (m/dk) |
| 1/180 | T1 | 16./1.9 | H1 | 0.11 ~ 2.1 |
| 1/2050 | T2 | 1.8/2.2 | H2 | 0.13 ~ 2.5 |
| 1/2020 | T3 | 2.3/2.8 | H3 | 0.16 ~ 3.1 |
| 1/90 | T4 | 3.1/3.7 | H4 | 0.21-4.2 |
| 1/75 | T5 | 3.8/4.5 | H5 | 0.25 ~ 5.0 |
| 1/60 | T6 | 4.7/5.6 | H6 | 0.31 ~ 6.2 |
| 1/50 | T7 | 5.6/6.7 | H7 | 0.38 ~ 7.5 |
| 1/36 | T8 | 7.8/9.4 | H8 | 0.52-10.4 |
| 1/30 | T9 | 9.3/11.2 | H9 | 0.63 ~ 12.5 |
| 1/25 | T10 | 11.3/13.5 | H10 | 0.75 ~ 15.0 |
| 1/18 | T11 | 15.6/18.7 | H11 | 1.04 ~ 20.8 |
| 1/15 | T12 | 18.8/22.5 | H12 | 1.25 ~ 25.0 |
| 1/12.5 | T13 | 22.5/27.0 | H13 | 1.50 ~ 30.0 |
HCII-M Kemer Hızı
| Oran | Hız No. | Sabit hız 50/60 (Hz) (m/dk) |
| 1/2020 | T1 | 15/18 |
| 1/90 | T2 | 20/24 |
Sabit hızın hız hesaplaması: Hız 1500/1800rpm (50/60Hz), sürüş silindiri ф82.3, Sürüş Verimliliği:% 95
Değişken Hız Hız Hesaplaması: Hızı Döndür 2000RPM (50; 60Hz), Sürüş Silindiri ф82.3, Sürüş Verimliliği:% 95
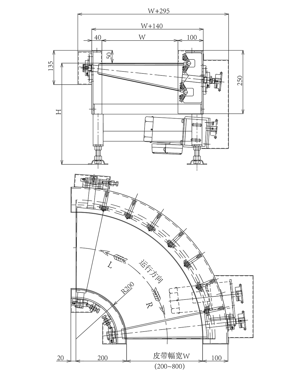
Çizim

Kılavuz tekerleği ve kılavuz çubuğu arasındaki işbirliği sayesinde kemer çekilir ve koşmaya yönle...
Kılavuz tekerleği ve kılavuz çubuğu arasındaki işbirliği sayesinde kemer çekilir ve koşmaya yönlendirilir.
Özellikler: Düşük gürültü, yüksek hız ve hatta kemer kuvveti.
Standart boyut
| Kayış genişliği | 200 | 300 | 400 | 500 | 600 | 700 | 800 |
| Konveyör genişliği | 520 | 620 | 720 | 820 | 920 | 1020 | 1120 |
| Açılış | 90 | Motor gücü | 200W 、 370W 、 750W |
| Yükseklik | 380 ila 1100 feet yüksekliğinde | Güç | A (AC110V tek fazlı) B (AC200V tek fazlı) C (AC200V/380V Üç faz) |
| Hız | Sabit hız | Kemer | Poliüretan kemeri |
| Kabiliyet | 100kg/set (yatay olarak dağılmış yük olduğunda) |
Torba şekillerini şekillendirirken, lütfen aboving kabiliyeti verilerinin% 40'ına ulaşın.
Kayış hızı
| Oran | Hız No. | Sabit hız 50/60 (Hz) (m/dk) | Hız No. | Değişken Hız 50Hz (m/dk) |
| 1/180 | T1 | 1.6/1.9 | H1 | 0.09-1.7 |
| 1/2050 | T2 | 1.9/2.3 | H2 | 0.1-2.1 |
| 1/2020 | T3 | 2.4/2.9 | H3 | 0.13-2.6 |
| 1/90 | T4 | 3.2/3.8 | H4 | 0.17-3.5 |
| 1/75 | T5 | 3.8/4.6 | H5 | 0.2-4.2 |
| 1/60 | T6 | 4.9/5.8 | H6 | 0.25-5.1 |
| 1/50 | T7 | 5.8/6.9 | H7 | 0.3-6.2 |
| 1/36 | T8 | 8/9.5 | H8 | 0.4 ~ 8.6 |
| 1/30 | T9 | 9.5/11.5 | H9 | 0.5-10.4 |
| 1/25 | T10 | 11.5/13.7 | H10 | 0.6-12.4 |
| 1/18 | T11 | 15.9/19 | H11 | 0.9-17.3 |
| 1/15 | T12 | 19.3/22.3 | H12 | 1 ~ 20.6 |
| 1/12.5 | T13 | 23/27.4 | H13 | 1.2-24.8 |
| 1/7.5 | T14 | 38.3/45.8 | H14 | 2.1-41.4 |
| 1/5 | T15 | 57.5/68.6 | H15 | 3.1-62 |
| 1/3.6 | T16 | 79.9/95.4 | H16 | 4.3-86.1 |
| 1/3 | T17 | 95.8/114.4 | H17 | 5.2-103.4 |
Sabit hızın hız hesaplaması: Hız 1500/1800rpm (50/60Hz), sürüş silindiri ф82.3, Sürüş Verimliliği:% 95
Değişken Hız Hız Hesaplaması: Hızı Döndür 2000RPM (50; 60Hz), Sürüş Silindiri ф82.3, Sürüş Verimliliği:% 95
Çizim

Zincir ve kılavuz tekerleği arasındaki işbirliği sayesinde kemer çekilebilir ve yönlendirilebilir...
Zincir ve kılavuz tekerleği arasındaki işbirliği sayesinde kemer çekilebilir ve yönlendirilebilir.
Özellikler: Ağır yük ve hızlı hız.
Standart boyut
| Kayış genişliği | 400 | 600 | 800 | 1000 | 1200 | 1400 | 1600 | 1800 |
| Konveyör genişliği | 525 | 725 | 925 | 1125 | 1325 | 1525 | 1725 | 1925 |
| Açılış | 90 | Motor gücü | 370W 、 750W 、 1.1kw 、 1.5kw 、 2.2kw |
| Yükseklik | 550 ila 2000 feet yüksekliğinde | Güç | A (AC110V tek fazlı) B (AC200V tek fazlı) C (AC200V/380V Üç faz) |
| Hız | Sabit hız | Kemer | Poli (N-vinil karbazol) |
| Kabiliyet | 200kg/set (yatay olarak dağılmış yük olduğunda) |
Torba şekillerini şekillendirirken, lütfen aboving kabiliyeti verilerinin% 40'ına ulaşın.
Kayış hızı
| Oran | Hız No. | Sabit hız 50/60 (Hz) (m/dk | Hız No. | Değişken Hız 50Hz (m/dk) |
| 1/2040 | T1 | 2.6/3.0 | H1 | 1.0-2.6 |
| 1/2020 | T2 | 2.8/3.5 | H2 | 1.1-2.8 |
| 1/2000 | T3 | 3.5/4.2 | H3 | 1.4 ~ 3.5 |
| 1/90 | T4 | 4.0/6.7 | H4 | 1.6 ~ 4.0 |
| 1/80 | T5 | 4.4/5.4 | H5 | 1.8-4.4 |
| 1/70 | T6 | 4.9/5.8 | H6 | 2.0-4.9 |
| 1/60 | T7 | 5.8/7.0 | H7 | 2.3-5.8 |
| 1/50 | T8 | 7.0/8.4 | H8 | 2.8 ~ 7.0 |
| 1/45 | T9 | 7.7/9.3 | H9 | 3.1 ~ 7.7 |
| 1/40 | T10 | 8.6/10.5 | H10 | 3.4 ~ 8.6 |
| 1/30 | T11 | 11.6/14.0 | H11 | 4.7 ~ 11.6 |
| 1/25 | T12 | 14.0/16.8 | H12 | 5.6 ~ 14.0 |
| 1/20 | T13 | 17.5/21.0 | H13 | 7.0-17.5 |
| 1/15 | T14 | 23.3/28.0 | H14 | 9.3 ~ 23.3 |
| 1/10 | T15 | 35.0/41.9 | H15 | 14.0-35.0 |
| 1/5 | T16 | 70.0/83.8 | H16 | 28.0-70.1 |
Sabit hızın hız hesaplaması: Hız 1500/1800rpm (50/60Hz), sürüş silindiri ф82.3, Sürüş Verimliliği:% 95
Değişken Hız Hız Hesaplaması: Hızı Döndür 2000RPM (50; 60Hz), Sürüş Silindiri ф82.3, Sürüş Verimliliği:% 95
Çizim
Makaralı Konveyör Bakımı Neden Sistem Ömrünü Doğrudan Etkiler? Makaralı konveyör ...
DEVAMINI OKUMakaralı Konveyörü Gerçekten Ağır Hizmet Yapan Nedir? Ağır hizmet tipi bir makaralı konv...
DEVAMINI OKUMakaralı Konveyörler Nedir ve Türü Neden Önemlidir? Makaralı konveyörler Mallar...
DEVAMINI OKUMakaralı Konveyörler Neden Malzeme Taşımanın Bel Kemiği Olarak Kalıyor? Makaralı kon...
DEVAMINI OKUKonveyör sistemleri Her gün milyonlarca ton malzemeyi fabrikalar, depolar, maden saha...
DEVAMINI OKUGeleceğe işçiliği getirmek.
No.60, Zhenhu North Road, Hudai kasabası, Binhu Bölgesi , Wuxi 214100, Çin
+86 139-2153-1116
+86-510-8558 1519/8558 1530
+86-510-8558 1520







